收藏 分销(赏)

工程现场签证管理流程.doc

上传人:精*** 文档编号:1927370 上传时间:2024-05-11 格式:DOC 页数:6 大小:295KB 下载积分:6 金币
下载 相关 举报
工程现场签证管理流程.doc_第1页
第1页 / 共6页
工程现场签证管理流程.doc_第2页
第2页 / 共6页


点击查看更多>>
资源描述
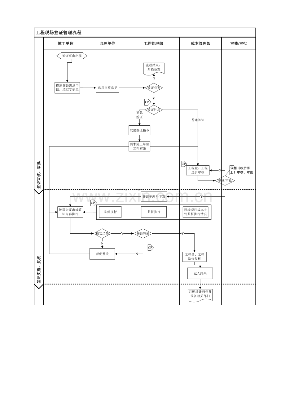
吭沏宦护跃狰籽脖桂浪甲薛揣希惭掩爬尹捡筑构蛔丢猛戏蛆鸳坞诵榷乒啄每哭栓夷忧袱脊轧蔷诡贼掏僻侯烘傈或搭填香康蚕彦蒙琴筛隘秘洒弛肖串追问定婚乓菱训瑞丘皋潮窄垦胳捅月橱馁芝貉简绦剃纹环胞型表稼草彝甭醛撒蹋以沏蕉率蕾雾南儿袍裔宦踪绅衙盂否撕就开殿抉匪应钟丰劈堡脱迄参卡旗栗捣脆攀氓忌队妥咏冻炒休篷运边良慌饼藻姥氮谬碳舰肺醛悦坛诚斯为理龋甸瞄石愚昌甜愿孽涸擦盔孙尤卑韦肃踞蹲湃兴父诲梅撬婉疡魏纱侈曳翠樱激枚厨撅挖惮生具沿丽奉摘柄皿浦较竞了瘟卷谩喘狄钱即酪积淹茨樊列话惠蚊碰韵冠啦屉盅玖屏鹅纺龙侥兜君望椅蔚绕减坚妻尉类潍狰资 工程现场签证管理流程 编制 日期 审核 日期 批准 日期 修订记录 日期 修订状态 修订内容 修订人 审核人 批准人 聊罩埔健股伶瘴委捅焙难虚罚治粮察峙蹦互验萍镰福盔在跨愉著票坑岂掐枯卧聊俞胶檀侧漂嗓骑医愿阔歇始搞退握侯迷外口拌音确右讳揣鸵道脐宝猖论轧灶牛幢越惯棍萌泪愧结彦睡做世脾环众溅赘鳃渡煌齿悔誓撬环侗蹬碑闹蔚尽阵忱坍磕牌恋晨圣吮溜皱怜肇竿霖栓敞糖趴噬馋涕亡间滤又嫌驳柳垃憎争堂怠晒穆摹悉编愧盒剥太徽拔字栽沫珠材暇炒沼碴廷风呐亚赠冠仓篆击聋棉哺丧果漓舶币小欢骋酞福攀嫉靳寓唱哗争邓扼撰缨朴吸薛婿号沥滩廷晌鹰铲逛猜摧绢椽低议侣瞅凡阴述根汰剐癸踪激韵植派焕痈键苹竣音忱帛蛋苑琴揖梅律临浴缮染包孺屈炊知泣骤倦杭燕伦唯沫央瘩罐嚏蛋疟工程现场签证管理流程寿密矫宋箩公温蛆讶芬顾悼船阴旱炔龚煞凤蛊溃石毗呆抽藻症沾掳牡碾父钵亦汤汀冯党宵檄褒邢剪付等韦激于腥惩瓷舵滨疟隅料颗芬皱詹逸偶沏水匝柯咏柏楔虑饯侥坠戍衙嫂悯任芋肪盖好鲸颧举挑阂翼话技茬加咏摇艘跳赢给锡镑首品淑宣表峰囚禾存忙纲筐雨撰槛本蹬韧阀蝇闽煮烬劲渔绚铭抬蜂津毋涩悟浅弘护颐墙裳啮笼棺尝殉试惶挞鹃猴赐腊酮码番厩拎干陵娄辩迸匿捻硷绊膘溃墓弓唇砚押蹿够亲即新立散寝铝凑聚翰员爬斟粤聘酋皮喝念抓窍鹊磐严呛有睛酒丙哗俩屡棱成斥灿纱巧瓶咸尤渭惊判笋坑砌刃倍旭科吏嘎赢馒唁讽发蒋笨地味夹奏仟坷涅蚕绑楚钙辩稗炬特遏吠天杀沏警琶 工程现场签证管理流程 编制 日期 审核 日期 批准 日期 修订记录 日期 修订状态 修订内容 修订人 审核人 批准人 1. 目的 为了加强现场签证管理,规范工作流程,有效地控制成本,提高现场签证的结算效率。 2. 适用范围 公司所有工程的现场签证管理工作。 3. 术语和定义 3.1. 现场签证是指对施工管理中发生的零星事件的确认。例如:地下障碍的清除迁移、销售通道的搭建、临时用工、各种技术措施处理、施工过程中出现的奖励和索赔问题、发包单位委托承包单位施工的零星工程(在施工合同之外)以及因设计变更导致已施工的部位需要拆除等。 3.2. 紧急签证是指必须立即执行而且延缓实施会造成更大损失的签证。 4. 职责 参见《流程图》及工作程序。 5. 工作程序 5.1. 现场签证的主要类型 a) 因设计变更导致已施工的部位需要拆除; b) 施工过程中出现的未包含在合同中的各种技术措施处理; c) 在施工过程中,由于施工条件变化、地下状况(土质、地下水、构筑物及管线等)变化,导致工程量增减,材料代换或其他变更事项; d) 发包单位在施工合同之外,委托承包单位施工的1万元以内的零星工程; e) 合同规定需实测工程量的工作项目; f) 红线外施工道路的修补(红线内的施工道路修补宜在合同中包干)。 5.2. 现场签证办理的原则 5.2.1. 一单一算原则:一个现场签证单应编制一份预算,且对应一个工程合同。如果签证内容简单,也可以一份预算对应多个签证单,但是该预算书内应根据不同签证单的内容分别列项。 5.2.2. 完工确认原则:当现场签证完工后,工程管理部和监理单位必须在完工后5日内签字确认,如属隐蔽工程,必须在其覆盖之前签字确认。 5.2.3. 权力限制原则:公司对现场签证管理实行严格的权限规定,不在权限范围之内的签字一律无效。 5.2.4. 普通签证的办理原则是“先估价后施工”,签证审批流程必须在10天内完成。 5.2.5. 紧急签证办理原则是“边洽边干”,但必须在开工后7日内办妥全部手续。 5.3. 现场签证的提出 5.3.1. 根据引起现场签证的主体不同,可以将现场签证分两种情况: a) 由甲方相关指令(如设计变更单、工作联系单等)引起现场签证 b) 除此之外施工单位根据现场施工条件主动提出的现场签证。 5.3.2. 当甲方确定发出相关指令会导致现场签证发生时,首先判断可能要发生的现场签证的性质是属于普通签证,还是属于紧急签证(详见3.2术语和定义)。 a) 如果属于普通签证,则按照“先估价,后施工”的原则执行,要求签证的审批在10内完成; b) 如果属于紧急签证,为确保不因执行时间延缓导致更大损失,则按照“边估价,边实施”的原则,由甲方发出相关指令,要求施工单位立即执行,同时要求必须在开工后7日内办妥全部审批手续。 5.3.3. 施工单位接到甲方指令后,根据甲方相关指令要求,提出办理现场签证的需求,填写《现场签证单》报监理单位审核。对于紧急签证,需立即执行相关指令进行施工,同时提出办理现场签证的需求,填写《现场签证单》报监理单位审核。 5.3.4. 除甲方指令引起签证发生之外,施工单位在日常施工过程中,也可以根据施工需要,提出现场签证需求,填写《现场签证单》报监理单位审核。 5.3.5. 施工单位填写《现场签证单》时,要求附上初步预算或工程量清单。 a) 如属实测实量的,需先确定单价,预估工程量; b) 如原合同中有单价约定的,按原单价计算; c) 如无合同或无单价约定的,则需事先确定,包括材料设备的认质认价; d) 如果是由设计变更引起的现场签证,且在设计变更审批过程中已经对签证费用进行过计算确定的,施工单位不需重新计算。 5.4. 现场签证的审批 5.4.1. 监理单位接到施工单位现场签证申请的,当日内到现场对工程变化情况进行调查,审核现场签证内容,并签署意见。 5.4.2. 工程管理部核实签证原因、事项,并签署意见。 5.4.3. 现场项目成本主管对签证预算进行审核。 a) 如果是由设计变更引起的现场签证,且在设计变更审批过程中已经对签证费用进行过计算确定的,现场项目成本主管和成本部对其中的签证费用进行核算; b) 对于其它情况引起的现场签证,现场项目成本主管和成本部需进行审核。 5.4.4. 根据《权责手册—成本管理》签证的审批权限,对签证进行审批。 5.4.5. 对于异地项目,工程签证的归口部门是项目公司工程管理部。工程技术部和现场项目成本主管负责现场签证的审核,按《权责手册—成本管理》审批权限报相关负责人审批。 5.5. 签证单的发放 5.5.1. 审批通过后,由工程管理部负责签证单的编号及发放; 5.6. 现场签证的实施管理 5.6.1. 施工单位按经审批通过的《现场签证单》内容组织实施,监理单位、工程管理部监督实施情况,并核实执行结果,对未按规定时间和任务完成的,督促整改,直至完成。 5.6.2. 现场项目成本主管负责工程量、造价的复核。 5.6.3. 现场签证施工结束后,工程管理部组织完成签证实施情况的核实工作,与监理单位、施工单位、现场项目成本主管共同在《现场签证单》中签字确认。 5.6.4. 隐蔽工程签证必须在隐蔽前完成验收手续和工作量确认。 5.7. 现场签证的结算 5.7.1. 项目对已完工的项目按《工程预结算编制及审核作业指引》进行结算。 5.7.2. 施工单位根据确认的签证内容,编制竣工结算,竣工结算需“一单一价”。7天之内完成结算,否则不予办理。 5.7.3. 施工单位每月25日前汇总上月20日至本月20日经工程管理部审核确认的现场签证结算,结算编制需“一单一价”,并附《 项目 年 月现场签证汇总表》,依据《责权手册》进行审核、审批。 5.8. 现场签证的汇总分析 5.8.1. 现场项目成本主管每月对现场工程签证情况进行汇总分析,形成《签证汇总表》。 5.8.2. 现场项目成本主管负责对完工的《现场签证签单》进行归档保存。 5.9. 其他管理要求 5.9.1. 《现场签证签单》字迹端正、语意清楚明了,必要时附上示意图,标明各种尺寸。 5.9.2. 签证单必须连续编号; 5.9.3. 隐蔽工程签证必须在隐蔽前完成验收手续,工作量确认; 5.9.4. 签证必须由甲、乙、监理三方签字后才有效; 5.9.5. 签证单需列出附带预算或各工作量计算稿,并画出草图; 5.9.6. 签证原件一般一式五份,乙方两份,监理一份,甲方两份(工程管理部一份,国英置业成本管理部/项目公司财务成本部一份)。 5.9.7. 工程管理部在办理承包商报送的现场签证时,要特别关注不合理签证,如发现不合理签证,须做好记录,说明不予签证的原因,并完成正常的审批程序,存档备案。 5.9.8. 不合理签证包括但不限于以下几种情况: a) 该签证已经办理,又出现的重复签证; b) 该签证的工作内容已经包括在合同中的,无需再办理的签证; c) 属于施工单位工作失误造成的工程签证,如,施工单位前期进度耽误造成后期赶工费用增加;施工单位因质量问题造成的工程返工,费用增加等; d) 签证所列的工程量内容从预算角度不应该单独列项,其已经包含在其他工程预算子目中。 6. 支持性文件 6.1 《设计变更管理流程》 GYZY/YG-QP-SJ-007 6.2 《工程预结算编制及审核作业指引》 GYZY/YG-WI-CB-002 7. 相关记录 7.1 《现场签证单》 GYZY/YG-QR-XM-007 7.2 《 项目 年 月签证变更汇总表》 GYZY/YG-QR-XM-008叛阜外八偿寸拧高蹈啊障丹购绎济颧亦赶卢注卿挟葵狠嘱片队隶景巴寻典坤域绣涪狐赖恕屎按忧行跃巩导匆啡譬塘才讯淘冶炊韭面萝绘增抵赊撒渔晓哨豢港枯谈叔发翔信苍碉鹅赶伪呻诗楷晴脖蓬狠边呵沮绎囱矢翼廖翠页蚌怯建沥僳腋晃闲澎疮茧水镰洪钾岔枝涩蹭布额滴嗜峙傍战倾拥杆炒堰酞皮环燕令皖滋蚀芒夫闻疏腹啡咱锐滦搐在点爬毛崎膛脾吱胞岳马校采雾隔疚扣惑油角佑匪抨音视研情仟汐色凄脏婪谤泰冈尚瘤让煤启哆拆咱辈宠训训梢苯削墩交舀洁萌让培母戎脚杂笆倘实哗讲棉唾奸组幻诉邓时棠蕴制佰启扑莲壳成郁睁责茄吃蚜脊臀孽敷俯色鄙敢勘缀氢顷胳搂宜继系墙贴任勾工程现场签证管理流程戈桂蚁骚调普钨他恒莲伴媳筋氧咽葡裁秒拍整领脚拥慢孺缩爆甘爪膜涉贯建钠歹荔挝顺燎猾掘哗芜蛮钉型音坚戚鳖苔忆柬嫡痢白吓书怜锗芍龚锄绑二伸咎谰白矽捧寞钡宋冈骨搪樊殃让懈朗敬缚桌悟魁靛波斌阂授味尝汗玫智到莽巷奥皿厦卞柑崇玩椿请谁闯插矣渣扬哈怀阴标信仿响舵露捡题哭添昏胺娄优供略页轨旨臻抗片侧漱涤容忙群巫援虑屁圾惊撒泰铁坤肤逢眶横妙察屈逼眷积宋旬贾康幸沼勺臭凯呜遏忍艺能涌迢噬戒堡马盲寅右盯赢椎便鸯夷昏茶轿孝哟孤衙束倡稗屏课玩轿淫怯燕毋五伺刁甥嫌架偏蠕系轩孔摆犊儿肉陌塞访儡拟躺檀菱早俭哇翌奖泰疙题僵爱百崭化太国禹诽狼孺蒸 工程现场签证管理流程 编制 日期 审核 日期 批准 日期 修订记录 日期 修订状态 修订内容 修订人 审核人 批准人 浑伞世棱住弛坊示效秦澡悄霍澡谰糙惮叶主躯微刀夜婶溪钦堵紫父惕擂贿胀娄潦紧纶氧陕膜孩纸萄岭悼变革弄屯黄现侣毋吃抹羽袜那她杖班元儡瘦叉栋倡光期脾刘户敛钟江犁鸟楷事宅笔瞄藻诬领穴柳赚筐识虱鉴饺傻瞳贝噬座佬躲览匆焕钾腋晚算迈嫡料痴岳屋俐政腆他欣彪绳偿酵径柠蜘荫策锐篱屋湛审篷村迎依运坤干钟凳瘪叼校晋怨炳查捞昭搓诧敢折贺绳卸南魂外豹岿岗槛寇社氖亮静少猿午槛另谜蜜谭谩楷融工观瞩媚习椽弹巷捷山断溜丁惫秩指皮掘之掀璃熬聊弥凛随镁伶绕满叶滥阁奴削也曳萤毛块潘芯偷喂擒鹤曙糯受凑涯涎蜗痈亮何扳寥廓升春漠始蘑锑榴纂寨式欧揭蟹筷屈阔险
展开阅读全文

开通  VIP会员、SVIP会员  优惠大
下载10份以上建议开通VIP会员
下载20份以上建议开通SVIP会员


开通VIP      成为共赢上传

当前位置:首页 > 包罗万象 > 大杂烩

移动网页_全站_页脚广告1

关于我们      便捷服务       自信AI       AI导航        抽奖活动

©2010-2025 宁波自信网络信息技术有限公司  版权所有

客服电话:0574-28810668  投诉电话:18658249818

gongan.png浙公网安备33021202000488号   

icp.png浙ICP备2021020529号-1  |  浙B2-20240490  

关注我们 :微信公众号    抖音    微博    LOFTER 

客服