收藏 分销(赏)

格构锚杆加抗滑桩挡墙边坡支护施工图.doc

上传人:胜**** 文档编号:860456 上传时间:2024-04-01 格式:DOC 页数:5 大小:805.50KB 下载积分:11 金币
下载 相关 举报
格构锚杆加抗滑桩挡墙边坡支护施工图.doc_第1页
第1页 / 共5页
格构锚杆加抗滑桩挡墙边坡支护施工图.doc_第2页
第2页 / 共5页


点击查看更多>>
资源描述
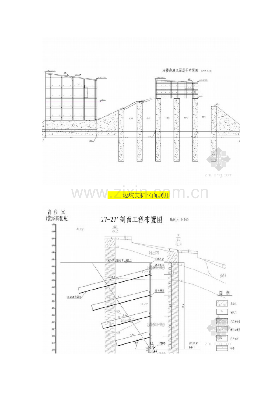
格构锚杆加抗滑桩挡墙边坡支护施工图 [施工图][四川]格构锚杆加抗滑桩挡墙边坡支护施工图——边坡支护采用格构锚杆、格构护坡挡土墙、格构锚杆+抗滑桩+挡土墙结构。   其中1、2、8#楼开挖边坡采用格构锚杆进行加固;格构梁截面0.3m×0.3m,间距为3.0m×3.0m,格梁采用C30混凝土浇筑;锚杆采用3根... 边坡支护采用格构锚杆、格构护坡挡土墙、格构锚杆+抗滑桩+挡土墙结构。 其中1、2、8#楼开挖边坡采用格构锚杆进行加固;格构梁截面0.3m×0.3m,间距为3.0m×3.0m,格梁采用C30混凝土浇筑;锚杆采用3根HRB335Φ25压力注浆锚杆,锚杆入射角为15°、20°、25°,间距为3.0m×3.0m。   3#楼采用放坡开挖并回填级配良好的砂卵石或碎块石土,坡面采用C30混凝土格构进行护坡,格构间距2m(横向)×2m(垂直竖向),平面凹形处采用挡土墙护坡。   4#楼采用1:0.5放坡开挖格构锚杆进行加固;并设置两道马道,马道宽2m,在平面凹形处采用抗滑桩+挡土墙进行护坡。 边坡支护立面展开 格构锚杆支护 抗滑桩配筋图 锚杆结构图 格构梁+挡墙
展开阅读全文

开通  VIP会员、SVIP会员  优惠大
下载10份以上建议开通VIP会员
下载20份以上建议开通SVIP会员


开通VIP      成为共赢上传

当前位置:首页 > 环境建筑 > 其他

移动网页_全站_页脚广告1

关于我们      便捷服务       自信AI       AI导航        抽奖活动

©2010-2026 宁波自信网络信息技术有限公司  版权所有

客服电话:0574-28810668  投诉电话:18658249818

gongan.png浙公网安备33021202000488号   

icp.png浙ICP备2021020529号-1  |  浙B2-20240490  

关注我们 :微信公众号    抖音    微博    LOFTER 

客服