收藏 分销(赏)

新版钢结构安装施工方案样本.doc

上传人:精*** 文档编号:4642082 上传时间:2024-10-08 格式:DOC 页数:20 大小:466.50KB 下载积分:10 金币
下载 相关 举报
新版钢结构安装施工方案样本.doc_第1页
第1页 / 共20页
新版钢结构安装施工方案样本.doc_第2页
第2页 / 共20页


点击查看更多>>
资源描述
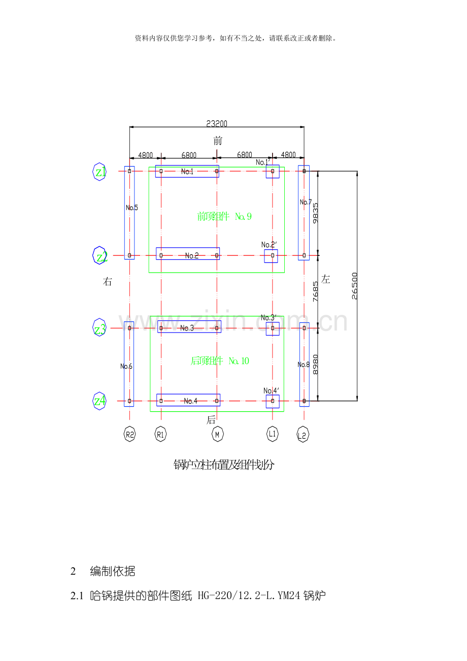
资料内容仅供您学习参考,如有不当之处,请联系改正或者删除。 钢结构安装施工方案 1 工程概述 1.1 深圳辽通公司220T/H锅炉工程的锅炉由哈尔滨锅炉厂设计制造的全封闭锅炉。本炉循环流化床燃烧形式, 系高压参数、 单锅筒、 自然循环、 高温分离锅炉。主要由燃烧室、 高温旋风分离器、 非机械阀、 尾部竖井对流烟道四部分组成。锅炉构架全部焊接, 其中设备采用支吊结合的固定方式。旋风分离器和空气预热器为支撑结构, 其余为悬吊结构。 1.2 各部分重量: 根据工艺装配需要, 将锅炉房钢结构部分分为十四个组件。每个组件的划分如下图. 各组件的重量如下表: 序号 组件号 重量( 吨) 序号 组件号 重量( 吨) 1 No.1 36..301 8 No.2’ 19.376 2 No.2 39.071 9 No.3’ 19.558 3 No.3 38.148 10 No.4’ 13.013 4 No.4 25.420 11 No.7 26.826 5 No.5 26.606 12 No.8 25.420 6 No.6 22.927 13 No.9 44.257 7 No.1’ 19.217 14 No.10 35.80 2 编制依据 2.1 哈锅提供的部件图纸 HG-220/12.2-L.YM24锅炉 2.2 《电力建设施工及验收技术规范》 锅炉机组篇 DL/T5047-95 2.3 《火电施工质量检验及评定标准》 锅炉篇 ( 1996年版) 2.4 《日本住友LS-368RH5 250t液压履带式起重机使用说明》 2.5 《钢结构施工及验收规范》 GB50205-97 3施工工艺 3.1 本次钢结构安装选用日本住友LS-368RH5 250t液压履带式起重机主吊, 80t汽车吊提尾的配合吊装方法。 3.2 本次结构吊装顺序为: No.1 No.2 No.5 No.3 No.6 No.4 No.1’ No.2’ No.3’ No.4’ No.9 No.10 ( 水冷系统各部件临时吊挂) No.7 No.8。 3.3 在结构吊装和安装的过程中, 穿叉进行汽包、 空气预热器、 省煤器等锅炉水冷系统组件的吊装、 存放和固定工作。 4吊装平面布置及吊车站位见平面图。 5 施工前应具备的条件  5.1 施工图纸到位, 已进行图纸的自审、 会审和设计交底工作, 并编制施工方案已报得业主批准。 5.2 有有效的合格的焊接工艺评定, 焊工经培训考试合格, 到得相应项目资质。 5.3 土建结构基础施工完毕, 并经交接、 验收合格。 5.4 人、 工机具、 材料齐备, 水、 电到位, 能够连续施工。 6 钢结构的预制 6.1 材料验收 6.1.1 钢材应附有质量证明书, 成品或半成品要具有合格证明文件。 6.1.2 钢材表面锈蚀、 麻点、 划痕的深度不得大于该钢材厚度负偏差值的一半; 断口处不得有分层缺陷。 6.1.3 焊条要有合格的证明文件, 焊条不得出现药皮脱落及焊芯生锈的现象, 并按规定进行焊条的复验。 6.1.4 供应的半成品要有编号, 按编号、 有序的在现场存放。 6.2 结构预制 6.2.1 预制平台的搭设 本锅炉的钢结构构件到货后, 要在现场进行组对, 焊接成组件, 故需在现场搭设预制钢平台两个, 平台的搭设方法如下: A、 在基础上划线, 按图量出支墩间距, 用拉对角方法检验支墩位置是否正确; B、 在支墩位置处挖坑( 大小、 深浅视现场承压能力及组合件重量确定) 在夯实后灌上混凝土。 C、 在混凝土基础上砌砖墩, 砖墩尺寸为600*600*900mm。 D、 放置好预埋件在砖墩里, 填满碎石, 灌上混凝土。 E、 将每一纵向的第一个和最后一个支墩用水平测量并调整一同一标高, 在两砖墩间拉一直线, 其它砖墩用垫铁调整标高。 F、 将工字钢放在砖墩上用水平测量工字钢上水平面的水平情况, 用垫铁调整完后, 焊牢用角钢固定。 G、 平台结构及布置如下图: 6.2.2 钢结构的组对 A、 立柱组对 立柱组对前要检查长度及托架高度, 拉钢丝检查立柱弯曲、 扭曲, 若弯曲、 扭曲超出规范要求, 则需要校正。 焊接前, 按图纸要求对坡口进行打磨并预留出焊接收缩量1.5-2.5mm, 焊接时按要求对称焊接。 组装前, 连接表面及沿焊缝每边30-50mm范围内的铁锈、 毛刺和油污等必须清除干净。 连接板处的焊缝要打磨平, 连接板焊接也要注意顺序, 以防应力变形。 立柱焊接好后, 以柱顶为基准, 向下返出1米的标高线, 并打眼冲作标记。 焊接边接组装的允许偏差不得超过表6.6.2规定。 B、 组合件的组合 把组合好的立柱按照要求间距摆好, 组对间距要大于设计4-6mm, 拉对角检查, 使对角差≤15mm, 将立柱用限位固定好, 连接横梁, 重复测量间距及对角线, 条款合要求后焊接, 再连接拉条。 C、 板梁组合 板梁组合前要进行检查, 包括次梁上的吊孔数量、 位置、 孔径, 有缺陷作好记录。放好主梁纵横向中心线, 打好眼冲标记, 调好主梁间距, 留出2-4mm焊接收缩量, 拉对角线检查, 符合要求后, 作好限位, 连接次梁, 点焊后, 重复测量间距、 对角线, 然后焊接。 7 钢结构的安装 7.1 锅炉结构基础的验收 7.1.1 锅炉钢结构在安装前要对结构的基础进行检查验收, 验收的允许偏差如下: 项目 允许偏差( mm) 不同平面标高( 包括预埋钢板) 0 -20 纵轴线和横轴线坐标位置 ±20 平面水平度 每米 5 全长 10 外形尺寸 平面外形尺寸 凸凹上平面外形尺寸 凹穴尺寸 ±20 0, -20 0, +20 预埋地脚螺栓 顶端标高 中心距 0, +20 ±2 7.1.2 锅炉结构安装前, 应划出纵向横向安装基准线和标高基准点。 7.1.3 基础划线符合以下要求: 一、 纵向和横向中心线应相互垂直; 二、 相应两 柱子定位中心线间距允许偏差为±2mm; 三、 各组对称四根柱子定位中心点的两对角线长度之差不应大于5mm。 7.2 垫铁制作安装 7.2.1 基础表面要清理干净, 打出麻面, 放置垫铁处应凿平。 7.2.2 垫铁每组不超过三块, 宽度一般为80-100mm, 长度稍超出柱肢底板两边10mm左右, 厚的入在下边。 7.2.3 垫铁要放在立柱底板立盘板下面, 每个立柱下垫铁的承压面积应根据立柱的设计荷重计算, 不应超过基础负荷的60%。 7.2.4 垫铁安装后, 用手锤检查, 无松动后, 把垫铁点焊在一起, 再与柱底板焊牢。 7.3 钢结构组件的吊装方法 钢结构组件的吊装采用日本住友LS-368RH5 250t液压履带式起重机主吊, 80t汽车吊为辅吊机械配合的吊装方法。 7.3.1 吊装机索具的选用 钢架吊装绳索的选用ф39-6X37+1-170钢丝绳两根, 单根长度24米, 一弯两股, 破断力为95t, 则安全系数A=( 95*4) /45=8.8,满足吊装系数要求。 卡环选用两个30卡环, 提尾绳扣选用ф39-6X37+1-170绳子, 单根长度16米, 一弯双股, 安全系数为6, 符合吊装要求。 吊装半径R不大于16米, 吊装能力为47t,吊杆长度51.8米。 7.3.2 吊车地基处理及预制场地处理 本次结构组对由于采用250t履带液压吊车, 吊车自重及配重300t, 连同起重载荷共计360t左右, 故吊车行走及站位路线要进行处理。现场整平, 浮土层外运( 400mm厚) , 垫300mm厚花纲岩石块各300mm厚碎石。用碾压机碾压, 最终高度与框架内渣沟沟壁平齐。另外, 由于锅炉框架内有排渣沟存在, 吊车行走以防对沟壁有所损坏, 在渣沟内垫1000mm厚砂子, 以上部分垫碎石, 与沟壁上沿平齐。 7.3.2 钢架起吊步骤 锅炉钢架起吊时, 由250t履带起重机作为主吊机械吊组件上部, 80t汽车吊作为辅吊机械抬吊组件尾部。起吊时, 同时启动两台吊车, 当组件提升离地面300mm时, 两吊同时停止提升, 检查吊装各部位联结级绳索具受力情况, 无异常时, 作为副钩的80t吊车停止起钩, 由主吊缓缓升钩, 副吊转向、 送钩, 直到组全件直立, 这时, 组合件的全部重量由250t履带吊独立承担。提尾吊80t吊车摘钩。履带吊带载荷行进, 直至将结构吊装到要求位置。然后找垂直, 固定。在吊车行走时, 严禁吊车做变幅动作, 以防吊车超载。 7.4 钢结构安装步骤 7.4.1 锅炉基础验收、 放线、 垫铁配制。 7.4.2 吊装找正No.1组件, 根据现场实际情况, 采用ф17.5以上拖拉绳固定。每个组件共设四根拖拉绳, 拖拉绳上部固定在立柱标高32 米处, 并用管皮垫在钢丝绳捆绑处, 以防钢丝绳损坏。钢丝绳下部生根在厂房梁上, 并用四台5吨导链调整、 找正。 7.4.3 吊装找正No.2组件用硬支撑与No.1组件连接固定。连接两个组件间的连梁, 安装两个组件间的平台梯子。 7.4.4 安装找正No.5组件, 用硬支撑固定在Z1R1和Z2R2立柱上。 7.4.5 连接R2排与Z1和Z2间横梁安装梯子平台。 7.4.6 用同样方法, 安装No.2组件的方法吊装组件No.3,连接组件间的连梁, 安装组件间的平台梯子。 7.4.7 用同样方法吊装组件No.6, 用硬支撑固定在Z3R1柱上, 一端托拉固定。然后吊装组件No.4, 连接Z3及Z4间的横梁及平台。 7.4.8然后依次吊装组件No.1’ No.2’ No.3’ No.4’,并连接组件上的横梁。 7.4.9 锅炉顶板吊装方法 锅炉顶板分为前后两部分, 即No.9和No.10两 部分, 顶板吊装前要对钢架柱头标高和中心尺寸进行测量, 校核并做好记录, 要求达到规范允许的范围内。待所有水冷壁及尾部空气预热器、 省煤器、 包墙过热器临 时存入完后, 才能够进行顶板吊装。顶板吊装由LS-368RH5 250t液压履带式起重机单独承担。工作半径严格控制。当组件吊起离地面3米左右时, 可进行吊杆穿装, 然后吊装、 就位、 固定。 7.4.10 组件No.7待炉室内受热面吊装存放完毕, 用硬支撑固定在Z1L1和Z2L1立柱上。 7.4.11 待尾部受热面吊装完毕, 组件No.8吊装就位, 用硬支撑固定在Z3L1和Z4L1上。 7.4.12 梯子平台安装 梯子平台安装穿插在钢结构组合、 安装过程中, 在组合构架条件允许情况下, 把平台的支架、 扭腿带上, 以减少高空作业量。平台框架也需在地面组对, 施工中部件切割处要打磨平, 并刷油。 梯子平台安装要注意施工时的工艺, 平台格栅拼装网格成线, 栏杆立柱要垂直美观, 间距均匀, 栏杆水平, 拐弯处弯头要圆滑、 美观。 8 结构的焊接 8.1 本锅炉结构部分的材料大部分为Q235, 故焊材主要选用结422焊条, 直径从2.5-5.0mm。 8.2 焊工应经相应项目考试并取得合格证后方可施焊。 8.3 施焊前, 焊工应复查组装质量和焊缝区的处理情况, 如不符合要求, 应修整合格后方能施焊。 8.4 普通碳素结构钢厚度大于34mm和低合金钢厚度大于30mm时, 工作地点温度不低于00C时, 应进行预热, 其焊接预热温度及层间温度宜控制在100-1500C, 预热区应在焊接坡口两侧各80-100mm范围内。工作地点温度低于00C 时, 预热温度按实验确定。 8.5 多层焊接应连续施焊, 其中每一层焊道焊完后应及时清理, 如发现有影响质量的缺陷, 必须清除后再焊。 8.6 焊缝出现裂纹时, 焊工不得擅自处理, 应申报焊接技术负责人查清原因, 订出修补措施后, 方可处理。 8.7 严禁在焊缝区以外的线材上打火引弧, 在坡口内起弧的局部面积应熔焊一次, 不得留下弧坑。 8.8 焊缝质量检查 钢结构焊缝质量检验分三级, 按照设计级别, 分别按相应等级进行检查, 级别表及相应检查览表如下: 级别 检验项目 检查数量 1 外观检查 全部 超声波检验 全部 X射线检验 抽查焊缝长度2%, 至少应有一张底片 2 外观检查 全部 超声波检验 抽查焊缝长度的50% 3 外观检查 全部 焊缝外观检查及无损检测按有关标准执行。 9 质量保证措施 9.1 建立完整的质量保证体系。 项目经理 施工经理 项目总工 工艺责任工程师 质量检验责任工程师 理化责任工程师 无损检测责任工程师 焊接责任工程师 施工班组 质量保证体系结构图 9.2按照质量标准和质量保证体系对质量进行管理, 使钢结构安装过程中的质量得到控制和保证。 9.3 加强各级人员的质量教育, 提高全员质量意识。 9.4 加强质量预控和坚持”三检一评”制度, 对出现的问题及时反馈及时整改。 9.5 对原材料做好检验, 严把质量关。 9.6 严格执行工序交接制度, 上道工序不合格, 不得进行下道工序施工。 10安全技术措施 10.1安全注意事项: 10.1 .1对参加吊装作业的人员应及时进行安全意识教育, 树立”安全第一”的思想。 10.1.2 认真检查机索具, 特别是卡环, 起吊前对各部位连接认真检查, 确保吊装安全。 10.1.3 吊装结构吊装作业区, 挂上红白绳, 与吊装无关人员不得入内。 10.1.4 吊装作业区及附近不允许有高压电线, 若有必须先进行拆除或采取停电措施后方可吊装。 10.1.5 若吊装超过吊装作业半径, 放结构时, 要防止结构受力变形。 10.1.6 吊装时, 吊装臂下严禁站人。 10.1.7 吊装过程中, 如发生突然情况因故暂停, 施工人员不得慌乱, 听从指挥, 及时采取措施排除故障, 且不得使结构长期处于悬吊状态。 10.1.8 吊装指挥在吊装作业前对吊装作业人员特别是司机进行信号交底, 司机在不明白意图时不要猜测性进行操作。 10.1.9 风力超过五级或雨天不允许吊装, 并不得进行登高作业。 10.1.10 结构安装过程中要注意立体交叉作业的保护, 以免出现意外。 10.1.11进入工地要戴安全帽, 登高作业要佩戴安全带。 10.12 1.结构吊装要用缆绳临时拉固。 10.2安全技术措施: 10.2.1柱子和成榀构架吊装时要拉溜尾缆绳。 10.2.2柱子和成榀构架吊装前, 要安装好登高梯和焊接操作平台, 平台打设示意见下图。 10.2.3在行走梁的一边拉钢丝缆绳, 以防跌落。 10.2.4在作业区的下方设置安全网。 10.2.5登高梯需制做20副, 需用20螺纹钢3200米。 11 劳动力组织 序号 工种 人数 1 铆工 6 2 起重 10 3 电焊 16 4 气焊 6 5 力工 10 6 测量工 2 7 队长 1 8 技术员 1 12 吊装机索具及材料一览表 序号 名称 规格及材质 单位 数量 备注 1 履带吊 250t 台 1 租用 2 汽车吊 80t 台 1 3 汽车吊 50t 台 1 4 汽车吊 25t 台 1 5 运输车 10t 台 1 6 卡环 30t 个 8 7 卡环 20t 个 12 8 卡环 5t 个 20 9 钢丝绳 Φ39-6x37+1-170 根 2 单长24米 10 钢丝绳 Φ39-6x37+1-170 根 4 单长16米 11 钢丝绳 Φ18-6x37+1-170 根 800米 12 钢丝绳 Φ8.7-6x37+1-170 根 700米 13 道木 200x200x2500 根 60 14 手拉葫芦 5t,10t 个 各4个 15 电焊机 14kw 台 20 16 工字钢 I200 米 440 17 槽钢 [16 米 210 18 钢板 10mm 平 20 19 砂子 M3 36 20 花岗岩石 M3 540 21 碎石 M3 560 22 安全网 M2 600 23 脚手管 t 60 24 拉紧螺栓 M16 套 200 600长 25 角钢 75X6 米 300 26 木跳板 250 米 360 27 铁线 Φ3.5 10# Kg 120 28 20螺纹钢 米 3200 目 录 1. 工程概述 2. 编制依据 3. 施工工艺 4. 吊装平面布置及吊车站位 5. 施工前应具备的条件 6. 钢结构的预制 7. 钢结构的安装 8. 钢结构的焊接 9. 质量保证措施 10.安全技术措施 11.劳动力组织 12.吊装机索具及材料一览 深圳辽河通达公司流化床220T/H锅炉工程 锅炉结构施工方案 NO.001 编制单位: 中化六建盘锦工程项目部 批准单位: 审 批 人: 审 批 人 审 核 人: 审 核 人: 编 制 人: 中国化学工程第六建设公司盘锦工程项目经理部 二OO三年三月二十一日
展开阅读全文

开通  VIP会员、SVIP会员  优惠大
下载10份以上建议开通VIP会员
下载20份以上建议开通SVIP会员


开通VIP      成为共赢上传

当前位置:首页 > 品牌综合 > 施工方案/组织设计

移动网页_全站_页脚广告1

关于我们      便捷服务       自信AI       AI导航        抽奖活动

©2010-2025 宁波自信网络信息技术有限公司  版权所有

客服电话:0574-28810668  投诉电话:18658249818

gongan.png浙公网安备33021202000488号   

icp.png浙ICP备2021020529号-1  |  浙B2-20240490  

关注我们 :微信公众号    抖音    微博    LOFTER 

客服