收藏 分销(赏)

项目报批报建作业指引.docx

上传人:人****来 文档编号:10050076 上传时间:2025-04-19 格式:DOCX 页数:6 大小:112.46KB 下载积分:6 金币
下载 相关 举报
项目报批报建作业指引.docx_第1页
第1页 / 共6页
项目报批报建作业指引.docx_第2页
第2页 / 共6页


点击查看更多>>
资源描述
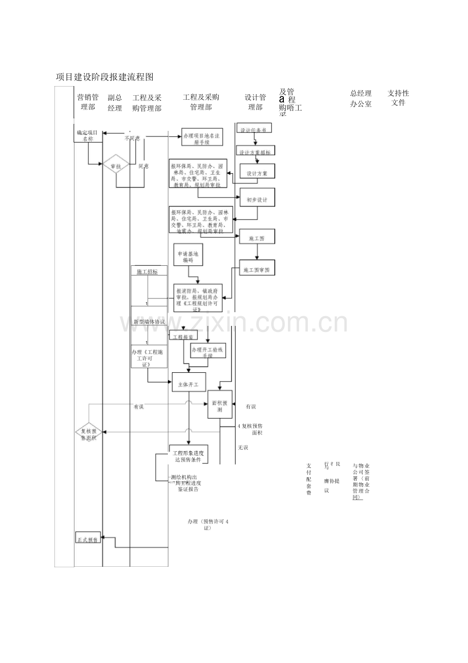
项目前期阶段报建流程 支持性文件 财务部 配套征询 支付地价 副总体方 案确定 产品定 位策划 成本 管理部 项目投资 估算书 项目可行 性报告 办理《 地证》 工程及采购 管理部 工程及采购 管理部 办理缴纳 土地出让 金及契税 办理签署 《国有土 地使用权 出让合 同〉手续 设计 管理 部 配套条件审 核意见书 报计委办理 年度商品房 计划 营销管 理部 项目论 证资料 移交 I 办理《建设用 地规划许可 证》 项目建设阶段报建流程图 确定项目 营销管理部 副总 经理 工程及采 购管理部 具工程进度鉴证报告 施工招标 1 新型墙体协议 1 办理《工程施工许可 证》 工程及采购管理部 设计管理部 -测绘机构出 *曰〒冬旦也柞* 工程形象进度达预售条件 办理〈预售许可4证〉 及管a程购唔工采 总经理 办公室 支持性文件 有误 4复核预售 面积 无误 支付配套费 行彳艮与 膺协提议 与物业公司签署〈前期物业管理合同〉 理室 经次 支持性文 项目竣工阶段报建流程图 项目 销售经营部发展项目经理部 部 竣工面积实测测量 土核手卖粘砖实乡 理工案收办竣档验 园林验收 人防验收 消防验收 规划验收 完成填报 〈住宅使 用说明 书〉 《住宅质 量保证 书》 办理〈竣工 验收备案证 书〉 资质证明 1. 目的 科学有效地安排项目各阶段的报批报建工作,确保项目的正常开发经营。 2. 适用范围 适用于公司项目开发过程中,因为地理位置较远,报批报建成本较高而由项目经理部负责的报批报建工作。 3. 术语和定义 4. 职责 4.1. 工程及采购管理部 4.2. 严格按照公司规范化运作要求,根据项目开发进度,及时准确地办妥各项目所需报批报建手续,提供相关合法文件,为各项目的顺利开发经营提供保证; 4.3. 营销管理部、成本管理部、设计管理部负责提交本部门报批报建资料。 5. 工作程序 5.1.在项目开发过程中,需各部门向工程及采购管理部提交的报批报建资料及 提交时机见下表: 报批报建事项 所需资料 资料提交部门 提交时机 房地产证 付清地价款证明 财务部 按土地出让合同 土地出让合同 工程及采购管理部 办完付清地价款证明 建设用地规划许可证 土地出让合同 工程及采购管理部 中标且测绘报告完成 申办项目地名注册 项目名称及释义 营销管理部 方案报建前 设计方案报审 设计方案文件 设计部 审核后 初步设计报审 初步设计图 设计部 审核后 建设工程规划许可证 审图公司审核后的施 工图 设计部 审核后 报批报建事项 所需资料 资料提交部门 提交时机 商品房面积预测 施工图及电子文件 设计部 开盘前60天 预售许可证 预售合同示范文本 营销管理部 开盘前30天 有资质的测绘机构出 具工程进度鉴证报告 工程及采购 管理部 开盘前15天 物业公司的前期物业 管理服务合同 总经理办公室 开盘前30天 公安部门批准的门牌号码批文及附图 工程及采购 管理部 开盘前20天 建筑面积预测报告 工程及采购 管理部 开盘前30天 与资金监管机构签定的预售监管协议 财务部 开盘前20天 竣工面积实测 建筑图纸 设计部 竣工验收前15天 规划验收 形象进度说明 工程及采购 管理部 竣工验收前15天 房地产权初始登记 竣工验收备案证明 工程及采购 管理部 项目验收后15天内 分层分户汇总表 营销管理部 项目验收后15天内 5.2. 项目经理部收集到报批报建所需资料后,按照政府主管部门依法行政手册要求,递交资料。 5.3. 政府主管部门窗收文后,项目经理部主办人员在取得批文前,至少与政府经办人联系一次,了解办文进展或按对方要求进行配合工作。 5.4. 政府部门承诺的办文时限到期当日或次日,项目经理部主办人员到指定地点领取批文,移交项目秘书归档,由项目秘书交总经理办公室存档。 6.相关记录 6.1. 建设用地规划许可证 6.2. 建设工程规划许可证
展开阅读全文

开通  VIP会员、SVIP会员  优惠大
下载10份以上建议开通VIP会员
下载20份以上建议开通SVIP会员


开通VIP      成为共赢上传

当前位置:首页 > 包罗万象 > 大杂烩

移动网页_全站_页脚广告1

关于我们      便捷服务       自信AI       AI导航        抽奖活动

©2010-2026 宁波自信网络信息技术有限公司  版权所有

客服电话:0574-28810668  投诉电话:18658249818

gongan.png浙公网安备33021202000488号   

icp.png浙ICP备2021020529号-1  |  浙B2-20240490  

关注我们 :微信公众号    抖音    微博    LOFTER 

客服